Tuš kabina 100 do 80 cm: modifikacije in montaža
Takoj je treba opozoriti, da dimenzije tuš kabine 100 x 80 cm omogočajo namestitev ne samo v zasebnih hišah, kjer je več prostora, temveč tudi v ločenih kopalnicah malih velikih stanovanj visokih zgradb. V zvezi s tem so takšne ovire za pranje lahko imenovane univerzalne, zlasti ker so pri njihovi izdelavi dovoljene različne spremembe v obliki spremembe oblike (ovalne ali pravokotne oblike) in materialov za pregrado.


Zdaj bomo poskušali podrobneje razširiti to temo, poleg tega pa vam bomo v tem članku prikazali tematski video.
Tuš prostori
Materiali, modifikacije, palete

- Začnimo z dejstvom, da takšni modeli za tuširanje niso nujno kotni, to je, za vogal, uporabljena oblika polizdelka ali celo pol-zloženega ventilatorja - privarčuje prostor v prostoru, v kabini pa lahko uporabite skoraj celotno površino - ni vogalov. Toda takšna ograja je lahko tudi sredi stene, to je, da se križišče izvede le na eno ravnino - to je, kjer so potrebne kvadratne in pravokotne strukture in čeprav je njihova cena skoraj enaka - namestitev je nekoliko drugačna.
- Druga razlika je gibljiva in fiksna plošča., ki ga lahko izdelamo iz kaljenega stekla ali plastike - to spremlja njegove prednosti in slabosti, ki so del tega ali tega materiala. Torej, steklo, zaradi svoje gosto strukture, lahko speremo s kemičnimi sredstvi, tudi z abrazivnimi aditivi, čeprav se za to praviloma uporabljajo okensko steklo in sredstva za pranje oken in ogledal. Težava je v tem, da steklene pregrade, kljub vročini, še vedno ostajajo steklo, to je krhka snov, včasih pa se zgodi, da se panel segreva v tovarni, krhkost pa se znatno poveča - predvsem vpliva na prevoz.
- Bolj zanesljiv v smislu mehanske trdnosti prozorne in matte plastike - ni tako enostavno zlomiti, vendar je porozna struktura onesnažena z mikroelementi, ki jih ni mogoče očistiti, kar pomeni, da ograja izgubi prvotno privlačnost. Poleg tega navodilo kategorično ne priporoča uporabo detergentov z abrazivnimi elementi in še posebej kemično aktivnimi tekočinami za čiščenje plastičnih prhe.

- Plošče iz kabine so lahko prozorne in matirane ali niansirane., zaradi česar je golota osebe, ki se pere tam, skoraj nevidna. Čeprav je pred kratkim industrija želela pregledne ograje, matične plošče še vedno zahtevajo na trgu vodovodne instalacije. To ni presenetljivo, ker v majhnih apartmajih, kjer je kopalnica deljena, včasih jo morate uporabiti skupaj, to je tako kabina in stranišče, zato je motnost tukaj zelo koristna.

- Palete so lahko kovinske in akrilne, plitve in globoke. - izbira je bolj odvisna od obsega - to je lahko odločilen dejavnik. Na primer, pladenj za tuširanje je primeren za kopanje otroka ali splakovanje, obstaja tudi sedež, kjer lahko sedite med pranjem. Po drugi strani pa je za starejšo osebo ali invalide izredno težko, včasih pa je celo nemogoče premagati oviro - oseba preprosto ne more dvigniti svoje noge tako visoko.
Skupščina
Opomba V primerih, ko je nameščena kotna kabina, mora biti kot, namenjen namestitvi, natančno 90 °. Če je odstopanje vsaj 1?, Nastane reža med steno in paleto in večje je odstopanje, večja je vrzel in doseže kritično, to je, da je ni mogoče zapreti. Seveda obstajajo načini, kot so obrezovanje ploščic, vendar je to izključno za izkušene obrtnike.

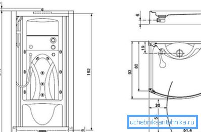
Začnimo z dejstvom, da so dimenzije tuš kabine v kadi 100x80x210 mm (L / W / H) lahko tudi drugačne, to pomeni, da se tu spremenita dolžina in širina, zato pri nakupu ograje morate razumeti, na kakšen način lahko pustite 100 cm in v katerih - 80. Na paleti, s pomočjo križa, so noge privijačene, kar se morate zagotovo prilagoditi ravni, medtem ko je paleta v obrnjenem stanju.
Po tem enostavno pritrdite paleto na vogal in jo ponovno preverite s ponovnim nivojem - če je potrebno, zasukate ali zvijte noge za poravnavo. Najbolje je, da jo pritrdite na steno s silikonsko tesnilno maso.

Nato sestavite kovinski okvir pod predelnimi stenami, vendar je treba okvir vstaviti v vodila (glej sliko zgoraj), ki sta nato na vogalih ponve strogo vertikalno pritrjena na steno (s silikonskim mazivom).

Ne glede na material (steklo ali plastika) ima tuš 800x1000 mm premične in fiksne plošče. Sprva se gluhi listi vstavijo in pritrdijo, na vsakem od njih pa na navpičnih robovih pa se položijo plastične tesnila - tista na vratni strani s predpasnikom.
Potem, s pomočjo dveh parov koles (zgoraj in spodaj), so obešena vrata - spodnji par se nastavi po obesitvi (obstajajo ekscentri) in magnetni trakovi so postavljeni na poravnalno točko, da se prilegajo.
Priporočilo. Po končani montaži kabine, med pladnjem in steno uporabite trak silikona. Potem povlecite okrasni prst na njo - to bo odtok in okras.
Zaključek
Namestitev tuš kabine z lastnimi rokami ni posebej težavna, če imate celo stene in tla, kot tudi kot 90 °. Toda kljub temu ne upoštevajte priročnika od proizvajalca - v vsakem modelu lahko pride do specifičnih odtenkov vgradnje.